「株式会社グラスプ」は、新たなフェーズ移行に際し、
2025年2月1日より「株式会社ヴィタ」に社名変更いたしました。

  • 募集中
  • 開発中

2026.9 Will Open

(仮称)豊中赤阪ウェルビーイングテラス

エリア
  • 大阪エリア
  • 大阪北部
特徴
  • 医療ビル
  • バス停から近い
  • 駐車場あり

アクセス

大阪府豊中市赤阪1丁目6-1(地番)

アセット詳細

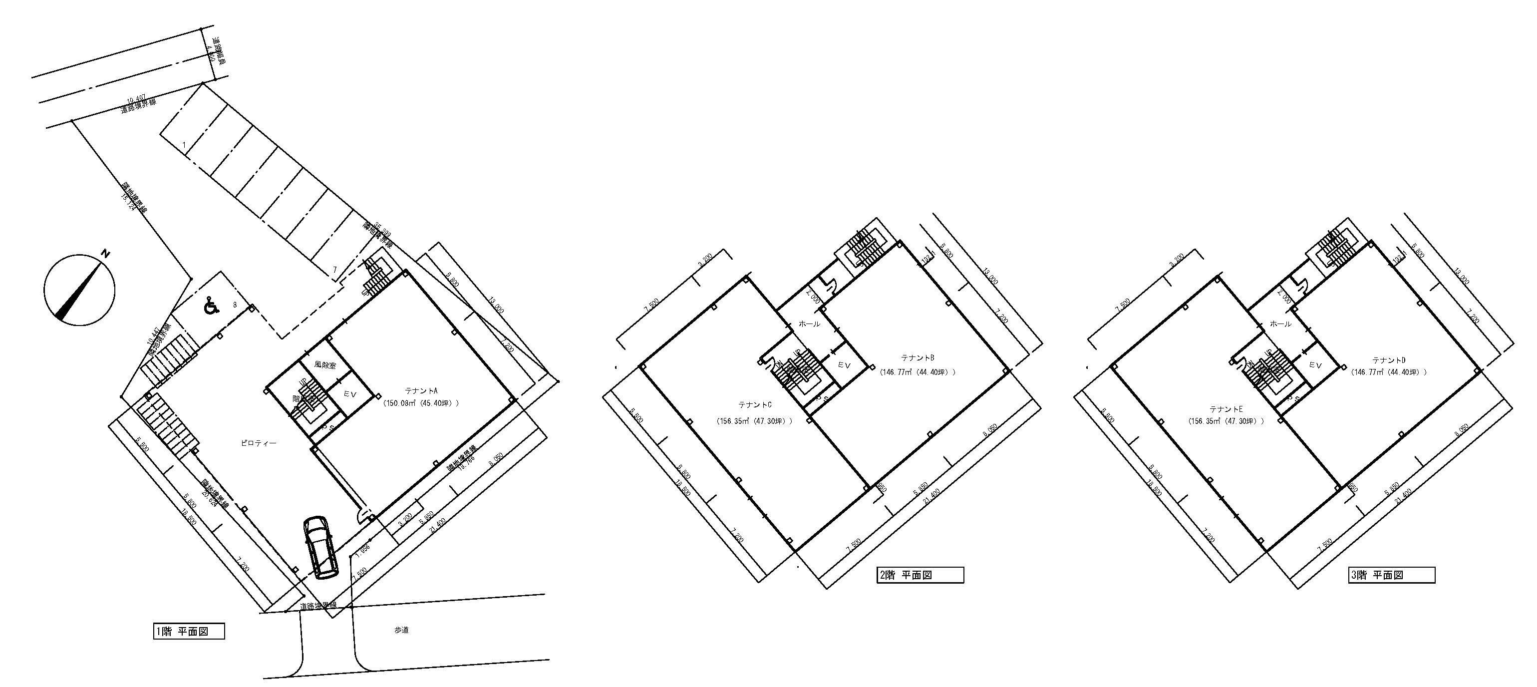
平面図

区画情報

  1. 3階

    • テナントE区画

      156.35㎡(47.30坪)

      募集中

    • テナントD区画

      決定

  2. 2階

    • テナントC区画

      156.35㎡(47.30坪)

      交渉中

    • テナントB区画

      146.77㎡(44.40坪)

      募集中

  3. 1階

    • テナントA区画

      150.08㎡(45.40坪)

      募集中

アセット情報

所在地
大阪府豊中市赤阪1丁目6-1(地番)
特徴
  • 施設タイプ:医療ビル
  • 立地条件:バス停から近い、駐車場あり

お問い合わせ

アセットについて少しでもご興味がありましたら、フォームかお電話にてお気軽にお問い合わせください。
フォームよりお問い合わせいただけましたら2~3日以内に担当者よりご連絡いたします。

クリニックの開業を
検討されているドクターの皆さまへ

開業時期、開業地、面積等ご希望があればぜひお教えください。

ドクター専用

直接電話で聞いてみる

TEL 06-6690-8866

開院をご検討中のドクターの方の
ご質問・ご相談等お受けする専用ダイヤルです。

お問い合わせ

【必須】は必須項目です

◆お名前【必須】

◆フリガナ【必須】

◆ご住所【必須】

郵便番号〒

都道府県

市区町村

番地

マンション・ビル名

◆電話番号【必須】

◆携帯番号

◆お電話での一次ヒアリングが可能な時間帯

※可能な限り、先ずは弊社担当者より
お電話にてニーズ概観をヒアリング後、
面談(オンライン・オフライン)設定または
お問い合わせの開発アセットに係る詳細資料を
メール送付させていただきます。

◆メールアドレス【必須】


◆開業希望時期

◆開業希望市町村

◆希望面積

◆気になるアセット

◆標榜予定科目

◆お問い合わせ者様

◆ご相談内容【必須】

◆お問い合わせにおける個人情報の取り扱いについて【必須】

当社のプライバシーポリシー(個人情報保護方針)に同意される方のみ送信できます。

当サイトでは、利用者の利便性向上や統計データ収集のためCookieを使用しています。詳細はCookieポリシーをご覧ください。