「株式会社グラスプ」は、新たなフェーズ移行に際し、
2025年2月1日より「株式会社ヴィタ」に社名変更いたしました。

  • 募集中
  • 運営中

2025.12 Will Open

阪急千里山駅前ウェルビーイングテラス

エリア
  • 大阪エリア
  • 大阪北部
  • 吹田市
特徴
  • 医療ビル
  • ヘルスコンシャスレストラン併設
  • 駅から近い
  • バス停から近い
  • 駐車場あり

アクセス

〒565-0842
大阪府吹田市千里山東2丁目27-16

アセット詳細

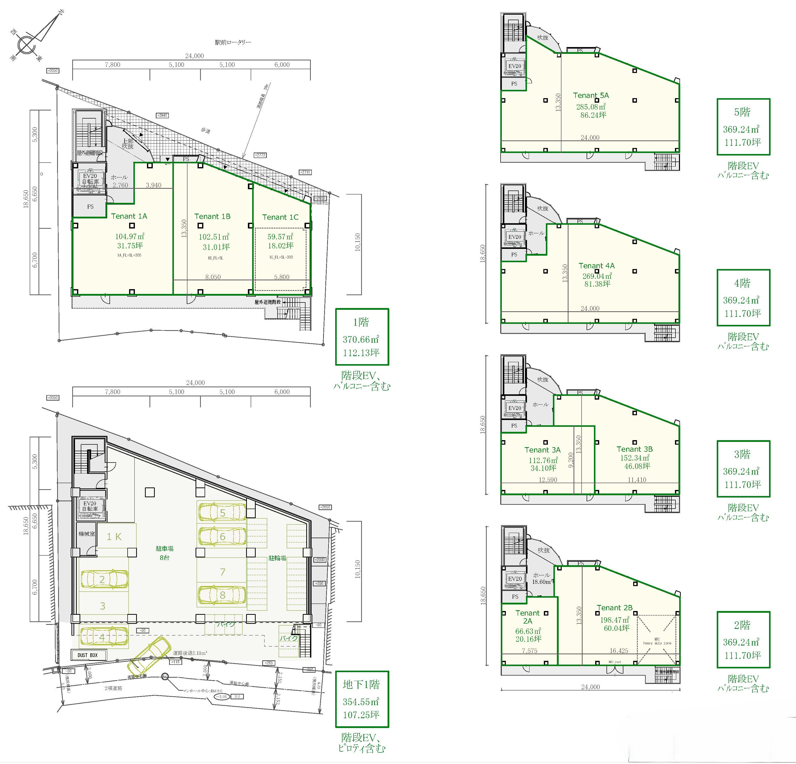
平面図

区画情報

  1. 5階

    • 5A区画

      整形外科

      決定

  2. 4階

    • 4A区画

      内科・血液内科・呼吸器内科・循環器内科・消化器内科

      決定

  3. 3階

    • 3A区画

      小児科・アレルギー科

      決定

    • 3B区画

      152.34㎡(46.08坪)

      交渉中

  4. 2階

    • 2A区画

      66.63㎡(20.16坪)

      交渉中

    • 2B区画

      脳神経外科

      決定

  5. 1階

    • 1A区画

      調剤薬局

      決定

    • 1B区画

      102.51㎡(31.01坪)

      募集中

    • 1C区画

      H.C.R.

      決定

アセット情報

所在地
〒565-0842
大阪府吹田市千里山東2丁目27-16
交通
阪急千里山駅
特徴
  • 施設タイプ:医療ビル
  • 併設施設:ヘルスコンシャスレストラン
  • 立地条件:駅から近い、バス停から近い、駐車場あり

Googleマップ

お問い合わせ

アセットについて少しでもご興味がありましたら、フォームかお電話にてお気軽にお問い合わせください。
フォームよりお問い合わせいただけましたら2~3日以内に担当者よりご連絡いたします。

クリニックの開業を
検討されているドクターの皆さまへ

開業時期、開業地、面積等ご希望があればぜひお教えください。

ドクター専用

直接電話で聞いてみる

TEL 06-6690-8866

開院をご検討中のドクターの方の
ご質問・ご相談等お受けする専用ダイヤルです。

お問い合わせ

【必須】は必須項目です

◆お名前【必須】

◆フリガナ【必須】

◆ご住所【必須】

郵便番号〒

都道府県

市区町村

番地

マンション・ビル名

◆電話番号【必須】

◆携帯番号

◆お電話での一次ヒアリングが可能な時間帯

※可能な限り、先ずは弊社担当者より
お電話にてニーズ概観をヒアリング後、
面談(オンライン・オフライン)設定または
お問い合わせの開発アセットに係る詳細資料を
メール送付させていただきます。

◆メールアドレス【必須】


◆開業希望時期

◆開業希望市町村

◆希望面積

◆気になるアセット

◆標榜予定科目

◆お問い合わせ者様

◆ご相談内容【必須】

◆お問い合わせにおける個人情報の取り扱いについて【必須】

当社のプライバシーポリシー(個人情報保護方針)に同意される方のみ送信できます。

当サイトでは、利用者の利便性向上や統計データ収集のためCookieを使用しています。詳細はCookieポリシーをご覧ください。