「株式会社グラスプ」は、新たなフェーズ移行に際し、
2025年2月1日より「株式会社ヴィタ」に社名変更いたしました。

  • 運営中

2022.11 Open

ビエラ蒔田メディカルゾーン

エリア
  • その他のエリア
  • 神奈川県(横浜市・鎌倉市)
特徴
  • 医療モール
  • 商業施設併設
想定診療科目
  • 内科
  • 整形外科
  • 小児科
  • 皮膚科
  • 婦人科
  • 心療内科
  • 精神科
  • 眼科

横浜市旧南区総合庁舎跡地(横浜市南区役所跡)の複合商業施設。
ブルーライン「蒔田」駅より徒歩約4分

アクセス

〒232-0018
神奈川県横浜市南区花之木町3丁目48-1

アセット詳細

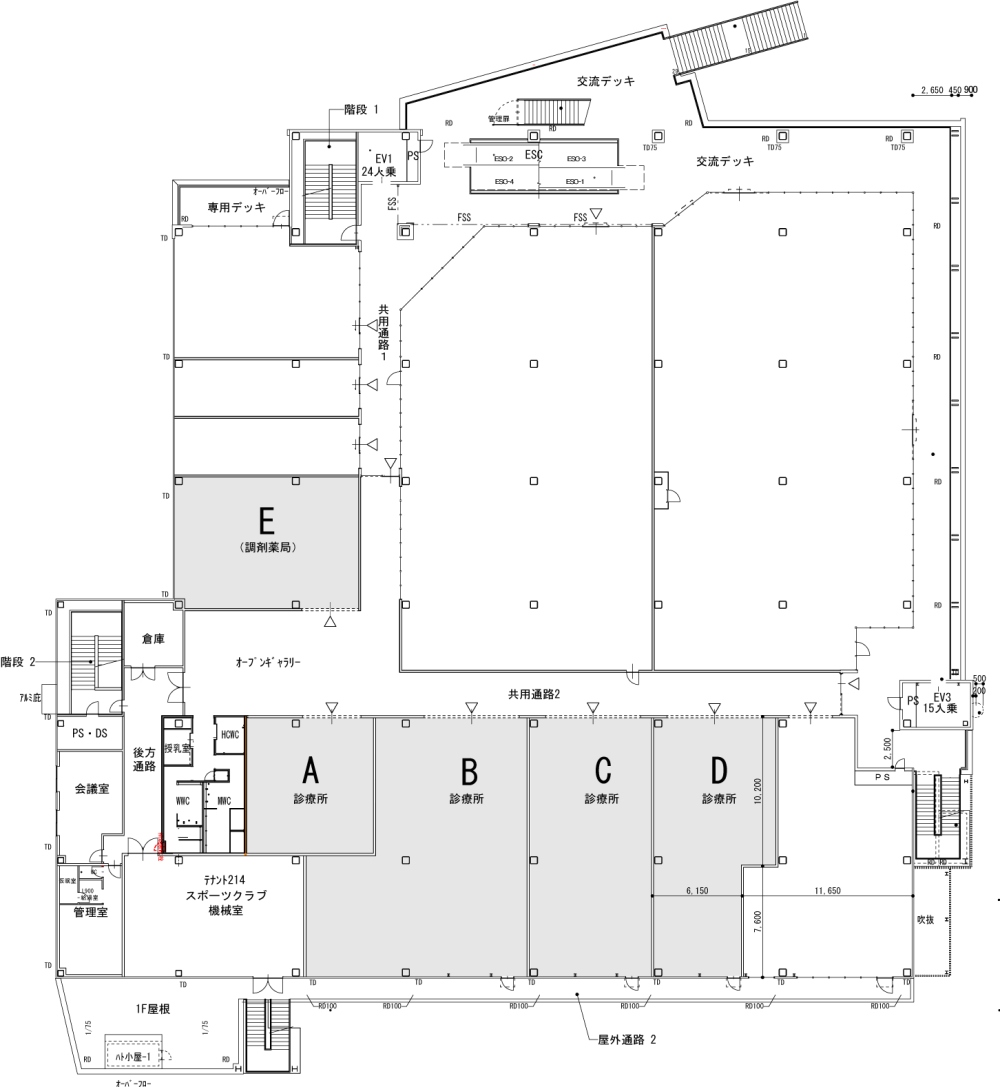
平面図

区画情報

  1. 2階

    • A区画

      皮膚科

      決定

    • B区画

      整形外科 

      決定

    • C区画

      内科

      決定

    • D区画

      歯科

      決定

    • E区画

      調剤薬局

      決定

アセット情報

所在地
〒232-0018
神奈川県横浜市南区花之木町3丁目48-1
特徴
  • 施設タイプ:医療モール
  • 併設施設:商業施設

Googleマップ

お問い合わせ

アセットについて少しでもご興味がありましたら、フォームかお電話にてお気軽にお問い合わせください。
フォームよりお問い合わせいただけましたら2~3日以内に担当者よりご連絡いたします。

クリニックの開業を
検討されているドクターの皆さまへ

開業時期、開業地、面積等ご希望があればぜひお教えください。

ドクター専用

直接電話で聞いてみる

TEL 06-6690-8866

開院をご検討中のドクターの方の
ご質問・ご相談等お受けする専用ダイヤルです。

ビエラ蒔田メディカルゾーンの施設情報

クリニック施設のご案内

  • マイタケアクリニック

    診療科目
    内科・脳神経内科
    電話番号
    045-315-3341
  • 横浜鶴ヶ峰病院付属まいた整形外科クリニック

    診療科目
    整形外科・リハビリテーション科
    電話番号
    045-315-5593

お問い合わせ

【必須】は必須項目です

◆お名前【必須】

◆フリガナ【必須】

◆ご住所【必須】

郵便番号〒

都道府県

市区町村

番地

マンション・ビル名

◆電話番号【必須】

◆携帯番号

◆お電話での一次ヒアリングが可能な時間帯

※可能な限り、先ずは弊社担当者より
お電話にてニーズ概観をヒアリング後、
面談(オンライン・オフライン)設定または
お問い合わせの開発アセットに係る詳細資料を
メール送付させていただきます。

◆メールアドレス【必須】


◆開業希望時期

◆開業希望市町村

◆希望面積

◆気になるアセット

◆標榜予定科目

◆お問い合わせ者様

◆ご相談内容【必須】

◆お問い合わせにおける個人情報の取り扱いについて【必須】

当社のプライバシーポリシー(個人情報保護方針)に同意される方のみ送信できます。

当サイトでは、利用者の利便性向上や統計データ収集のためCookieを使用しています。詳細はCookieポリシーをご覧ください。