「株式会社グラスプ」は、新たなフェーズ移行に際し、
2025年2月1日より「株式会社ヴィタ」に社名変更いたしました。

  • 募集中
  • 運営中

2025.12 Will Open

吉祥院ウェルビーイングテラス

エリア
  • その他の関西エリア
  • 京都府(京都市・向日市)
特徴
  • 医療ビル

アクセス

京都府京都市吉祥院西ノ庄西中町12

アセット詳細

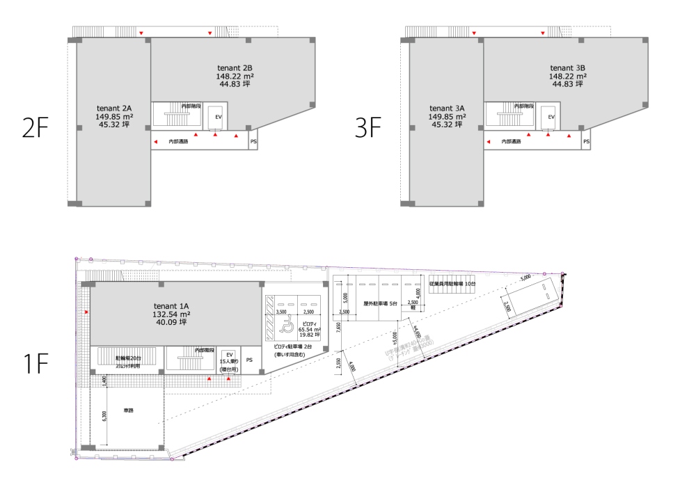
平面図

区画情報

  1. 3階

    • 3B区画

      148.22㎡(約44.83坪)

      交渉中

    • 3A区画

      小児科

      決定

  2. 2階

    • 2B区画

      148.22㎡(約44.83坪)

      交渉中

    • 2A区画

      149.85㎡(約45.32坪)

      交渉中

  3. 1階

    • 1A区画

      調剤薬局

      決定

アセット情報

所在地
京都府京都市吉祥院西ノ庄西中町12
特徴
  • 施設タイプ:医療ビル

Googleマップ

お問い合わせ

アセットについて少しでもご興味がありましたら、フォームかお電話にてお気軽にお問い合わせください。
フォームよりお問い合わせいただけましたら2~3日以内に担当者よりご連絡いたします。

クリニックの開業を
検討されているドクターの皆さまへ

開業時期、開業地、面積等ご希望があればぜひお教えください。

ドクター専用

直接電話で聞いてみる

TEL 06-6690-8866

開院をご検討中のドクターの方の
ご質問・ご相談等お受けする専用ダイヤルです。

お問い合わせ

【必須】は必須項目です

◆お名前【必須】

◆フリガナ【必須】

◆ご住所【必須】

郵便番号〒

都道府県

市区町村

番地

マンション・ビル名

◆電話番号【必須】

◆携帯番号

◆お電話での一次ヒアリングが可能な時間帯

※可能な限り、先ずは弊社担当者より
お電話にてニーズ概観をヒアリング後、
面談(オンライン・オフライン)設定または
お問い合わせの開発アセットに係る詳細資料を
メール送付させていただきます。

◆メールアドレス【必須】


◆開業希望時期

◆開業希望市町村

◆希望面積

◆気になるアセット

◆標榜予定科目

◆お問い合わせ者様

◆ご相談内容【必須】

◆お問い合わせにおける個人情報の取り扱いについて【必須】

当社のプライバシーポリシー(個人情報保護方針)に同意される方のみ送信できます。

当サイトでは、利用者の利便性向上や統計データ収集のためCookieを使用しています。詳細はCookieポリシーをご覧ください。